Negozio a Taviano
Negozio a Taviano
Negozio a Taviano
Negozio a Taviano
Negozio a Taviano
Negozio a Taviano
Negozio a Taviano
Negozio a Taviano
Negozio a Taviano
Negozio a Taviano
Negozio a Taviano
Negozio a Taviano
Negozio a Taviano
Negozio a Taviano

Negozio

VENDITA

Taviano (LE)

  • Superficie 300 mq
  • Vani 3 Vani
  • Bagni 2 Bagni

€ 195.000

Rif. 1015

Dettagli

Prezzo€ 195.000
TipologiaNegozio
Rif1015
Superficie300 mq
Locali3
Bagni2
Classe energeticaEsente
Piano immobilePiano terra
StatoBuono
Giardino privato
Terrazzo

Descrizione

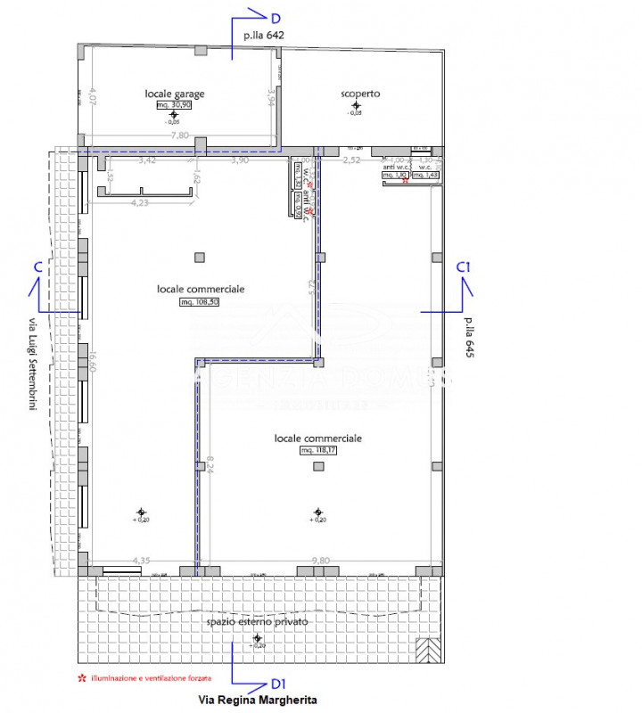
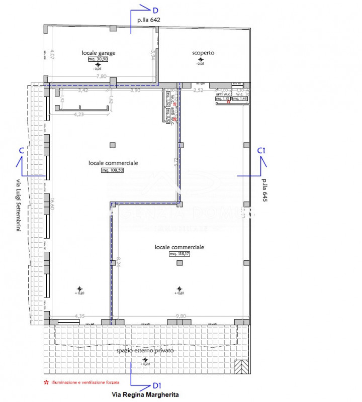
Proponiamo in vendita fabbricato composto da due locali commerciali, un locale garage/deposito e piccolo scoperto retrostante, ubicato nel comune di Taviano, lungo Via Regina Margherita n. 245, arteria principale di collegamento tra Taviano e Racale, caratterizzata da forte passaggio veicolare e massima visibilità commerciale. L’immobile si sviluppa in posizione angolare tra Via Regina Margherita e Via Settembrini, elemento che ne aumenta ulteriormente l’esposizione e l’attrattività. Complessivamente dispone di sette vetrine fronte strada, tutte dotate di vetri antisfondamento: 2 vetrine sul locale affacciato su Via Regina Margherita 5 vetrine sul locale angolare tra Via Regina Margherita e Via Settembrini I locali si presentano in buone condizioni generali, con allacci alla rete fognaria e all’acquedotto già presenti. Uno dei locali commerciali, precisamente quello posto ad angolo, è attualmente locato con regolare contratto di locazione in essere con scadenza 01/11/2028, garantendo sin da subito una rendita certa (dettagli sul canone annuo disponibili presso la nostra agenzia). La restante parte dell’immobile, comprensiva del locale commerciale libero e del garage/deposito su Via Settembrini, consente un utilizzo immediato da parte dell’acquirente o ulteriori possibilità di messa a reddito. Soluzione altamente versatile, ideale sia come investimento a reddito sia per chi desidera conciliare rendita immediata e utilizzo diretto, grazie alla composizione funzionale e alla posizione strategica su una delle vie più trafficate del paese. --- annuncio pubblicato con GESTIONALEIMMOBILIARE.it

Domus Immobiliare

Domus Immobiliare

Via Fiumi Marina 142, Racale
Tel. 3464774102 - Tel. 0833901217 - Mob. 3464774102
www.domusagenzia.it
P.IVA 05388950759

Negozio a Taviano

  • Negozio a Taviano
  • Negozio a Taviano
  • Negozio a Taviano
  • Negozio a Taviano
195.000
Prezzo
300 mq
Superficie
3
Locali

Descrizione

Proponiamo in vendita fabbricato composto da due locali commerciali, un locale garage/deposito e piccolo scoperto retrostante, ubicato nel comune di Taviano, lungo Via Regina Margherita n. 245, arteria principale di collegamento tra Taviano e Racale, caratterizzata da forte passaggio veicolare e massima visibilità commerciale. L’immobile si sviluppa in posizione angolare tra Via Regina Margherita e Via Settembrini, elemento che ne aumenta ulteriormente l’esposizione e l’attrattività. Complessivamente dispone di sette vetrine fronte strada, tutte dotate di vetri antisfondamento: 2 vetrine sul locale affacciato su Via Regina Margherita 5 vetrine sul locale angolare tra Via Regina Margherita e Via Settembrini I locali si presentano in buone condizioni generali, con allacci alla rete fognaria e all’acquedotto già presenti. Uno dei locali commerciali, precisamente quello posto ad angolo, è attualmente locato con regolare contratto di locazione in essere con scadenza 01/11/2028, garantendo sin da subito una rendita certa (dettagli sul canone annuo disponibili presso la nostra agenzia). La restante parte dell’immobile, comprensiva del locale commerciale libero e del garage/deposito su Via Settembrini, consente un utilizzo immediato da parte dell’acquirente o ulteriori possibilità di messa a reddito. Soluzione altamente versatile, ideale sia come investimento a reddito sia per chi desidera conciliare rendita immediata e utilizzo diretto, grazie alla composizione funzionale e alla posizione strategica su una delle vie più trafficate del paese. --- annuncio pubblicato con GESTIONALEIMMOBILIARE.it

Dettagli

Prezzo: € 195.000
Tipologia: Negozio
Rif: 1015
Superficie: 300 mq
Locali: 3
Bagni: 2
Classe energetica: Esente
Piano immobile: Piano terra
Stato: Buono
Giardino privato: Sì
Terrazzo: Sì